Venezia Lido in palazzo liberty | Ogni casa può divenire un castello... |
|
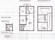
Descrizione completa: Lido di Venezia centro, in piccolo contesto liberty restaurato dei primi del '900 di 2 unità abitative, vendesi secondo ultimo piano ristrutturato di 110 mq, esposto su 4 lati, composto da salone con caminetto, cucina abitabile, 2 grandi camere matrimoniali e bagno con doccia. Una scala conduce ad una piccola mansarda con camera e sottotetti e soppalco con vista sul soggiorno. Possibilità per un secondo bagno. Termogas autonomo e impianto di aria condizionata nuovi. Questo immobile si trova a Venezia, nella regione Veneto ( zona: Lido) . |
|
Nazione: Italia Regione: Veneto Città: Venezia Zona: Lido Prezzo: € 615.000 Ulteriori informazioni disponibili: No Possibilità visite sul posto: No |
Superfice immobile mq.: 110 Condizioni generali: Buone! Classe energetica - IPE: N.d. Stato attuale: Disponibile ID:172 Dove si trova? Maps - Satellite |
|
Richiedi più informazioni! Marinehaus a garanzia di tutela della sua privacy, rende inaccessibili i dati forniti, a terzi. CC. 31/12/96 n.675 (Nessuna pubblicità o spam.)
Austria Toscana Le Marche La Liguria Piemonte
Friuli
Veneto
Umbria
Emilia Romagna Abruzzo Vivere in campagna --- © Marinehaus ---
Annunci immobiliari Marinehaus case Immobilien aus Italien Casas y pisos en Italia
Италия |

Dove si trova? Maps